Integrated Alumasc Water Management Solutions specified on new mixed-use development.

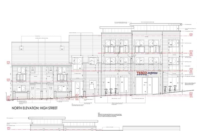
The site of a derelict petrol station located in the historical town of Hemel Hempstead has recently been transformed into a new retail and residential development.

Bovingdon High Street now features eight brand new apartments and a new Tesco express outlet, bringing new life into the once disused space near the town centre.

The unique design of the site coupled with the number of dwellings planned, saw a number of challenging design factors for the project, including curved roofs and the need for soffits within a confined space.

This is where Alumasc Water Management Solutions (AWMS) come into their own, offering a complete solution. An integrated Skyline and Rainwater offering was specified across the development, including Skyline’s bespoke aluminium fascia, soffits & copings. AX moulded extruded gutter systems with combined Swaged downpipes where also part of the final specification. All finished in a BBA approved, polyester powder coated finish, the final look achieved demonstrates understated quality, in dusty grey colour (RAL 7037) specifically to match the windows and balconies on the project.

“Thankfully we were consulted early in the project, which is where we are most effective,” commented John Hemphill, Skyline Technical Sales Manager, who worked on the project.

“We had a number of site meetings, which resulted in designing and submitting CAD and 3D drawings in order to ensure the project was delivered on time.”

Project Images

The Skyline fascia system is manufactured from high quality, polyester powder coated aluminium. Both Skyline Fascia and Soffit system are based on aluminium fascia profiles in a range of shapes and sizes, engineered to the highest standard on a project by project basis to suit any architectural requirements.

“Because of the project’s high technical nature, we manufactured Rainwater and Skyline products specifically for this build, and offered technical consultancy and on-site surveying throughout,” John explains.

The High Street project involved a specific requirement for vertical cladding panels, which utilised SOF7 aluminium soffit panels by Alumasc. This also covered a curved area. As a result, a curved aluminium fascia by Alumasc was specified, along with tapered soffits, vertical cladding and curved cills.

“The curved area of the building presented some challenges, but we overcame them thanks to our team and their 3D modelling software. This gave us and the client confidence that the product would fit correctly the first time.

“Working in partnership with Ithaca roofing proved to be an excellent experience, and demonstrated the full value that we can add to a project. From inception to completion.”